4P A RÉNOVER / BEAUMONT
Nice | 06000
1 / 11
4P A RÉNOVER / BEAUMONT
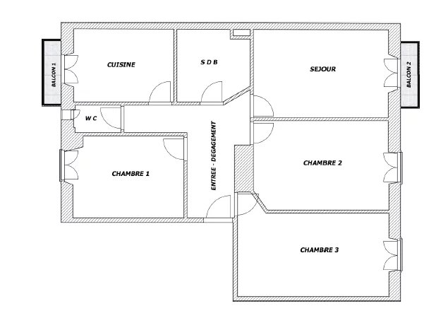
Quartier République, rue Beaumont proche des commodités, bel appartement 4 pièces de 67.22m² situé au 2ème étage (sans ascenseur) composé d'une entrée, séjour de 12m² donnant sur un petit balcon côté Beaumont, trois chambres de 9m², 11.9m² et 12.95m². Énorme potentiel pour ce bien entièrement à rénover à seulement 100m de la République. Réf. - Honoraires à la charge du vendeur - Montant moyen de la quote-part de charges courantes 1 863,72 €/an - Aucune procédure en cours (articles 29-1A/29-1 loi 65-557, L.615-6 du CCH) - Classe énergie 248.9 kWhEP/m².an (D) - Classe climat 9 kg CO2/m².an (B) - Montant estimé des dépenses annuelles d'énergie pour un usage standard, établi à partir des prix de l'énergie de l'année 2021 : 1250€ ~ 1710€ - Les informations sur les risques auxquels ce bien est exposé sont disponibles sur le site Géorisques : georisques.gouv.fr - TABONI TRANSACTIONS - Non-détention de fonds - SIRET 0040 - CPI 11342
Résumé
Offre
Vente
Catégorie
Appartement
Disponibilité
Libre
Pièces/Chambres
4
Chambres
3
Surface
67.22 m²
Etat
À rénover
Accord
Simple
Étages
2ème/5
Année de construction
1920
Surface totale
69.42 m²
Eau chaude
Chauffe-eau
Accès à l'eau
Individuel
Chauffage
Convecteur / Electrique / Individuel
SURFACES
1 Entrée
7.85m²
1 Chambre
9m²
1 Toilettes
1.3m²
1 Cuisine
7.3m²
1 Balcon
1.1m²
1 Salle de bains
4.92m²
1 Séjour
12m²
1 Balcon
1.1m²
1 Chambre
11.9m²
1 Chambre
12.95m²













